糸田アリーナ
〒822-1307 福岡県田川郡糸田町3778番地1
電話番号:0947-26-9006
開館時間:午前9時~午後10時
休館日:毎週月曜日、8月13日~15日、12月29日~1月3日
コンセプト
誰もが利用しやすい施設
全ての人が利用しやすいように施設内をバリアフリー化し、アリーナへのアプローチにはスロープを配置しています。
利用する施設の受付窓口は1階インフォメーションに集約し、効率の良い動線を確保するため、エレベーターをその近くに配置しています。また、通路は広々とゆとりある造りとなっており、各階には多機能トイレや授乳室を備える等、利用者が快適に利用できるように設計しています。
防災設備
災害時に防災拠点としての機能も果たせる施設
ガスを燃料とした非常用発電機を設置しており、停電時でも72時間は避難所として活動できる範囲には電気の供給が可能となっています。また、備蓄倉庫を完備しており、マットや毛布、食料2日分の備蓄を行っています。(3日目以降の食料も協定事業者から供給されます。)収容人数は280名、感染症対策を行う際は160名(80世帯)としています。
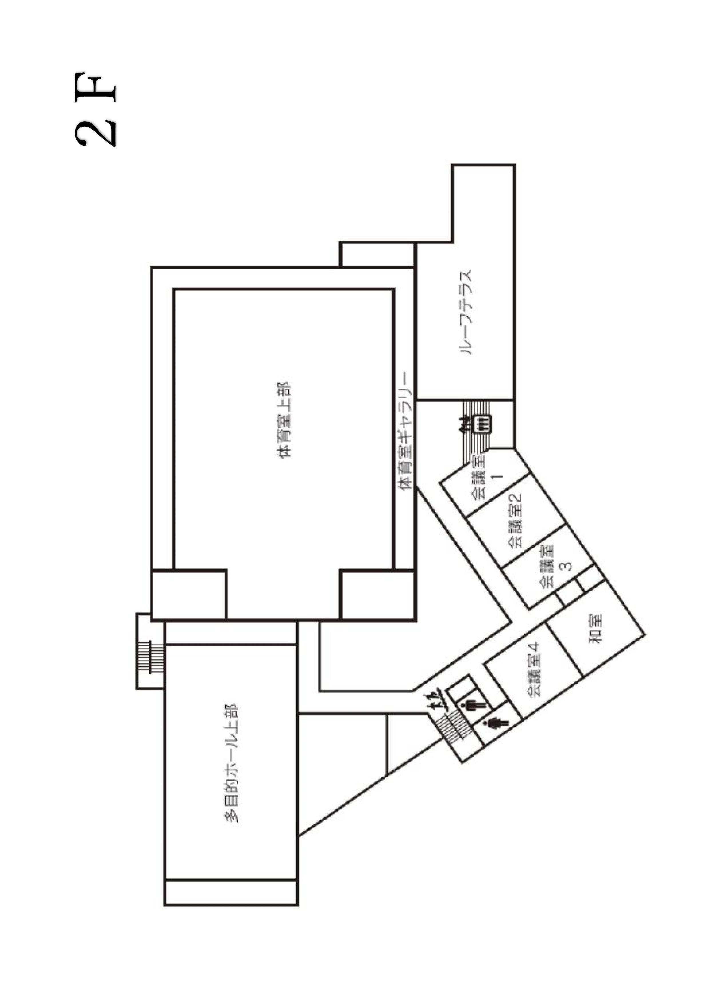
糸田アリーナ施設
複合施設である糸田アリーナには体育室、多目的ホール、多目的スタジオ、児童館、厨房、陶芸室、会議室、和室、ルーフテラスが完備されています。
体育室
多目的ホール
多目的スタジオ
児童館
厨房
陶芸室
陶芸室は電気釜を設置しており、作成から完成までを行えるようになっています。
会議室
会議室1.2.3は間仕切りがあり、用途に応じて区切ることで、多様な利用が可能になっています。会議室4は間仕切りのない独立した会議室となっています。
和室
ルーフテラス
スケートボードパーク
料金表
問合せ・予約
電話番号:0947-26-9006(糸田アリーナ窓口)
※毎週月曜日は休館日です。
広報紙の記事にも掲載されました!
[本文はここまでです]









































